REQUEST A TOUR If you would like to see this home without being there in person, select the "Virtual Tour" option and your agent will contact you to discuss available opportunities.
In-PersonVirtual Tour

$ 12
Active
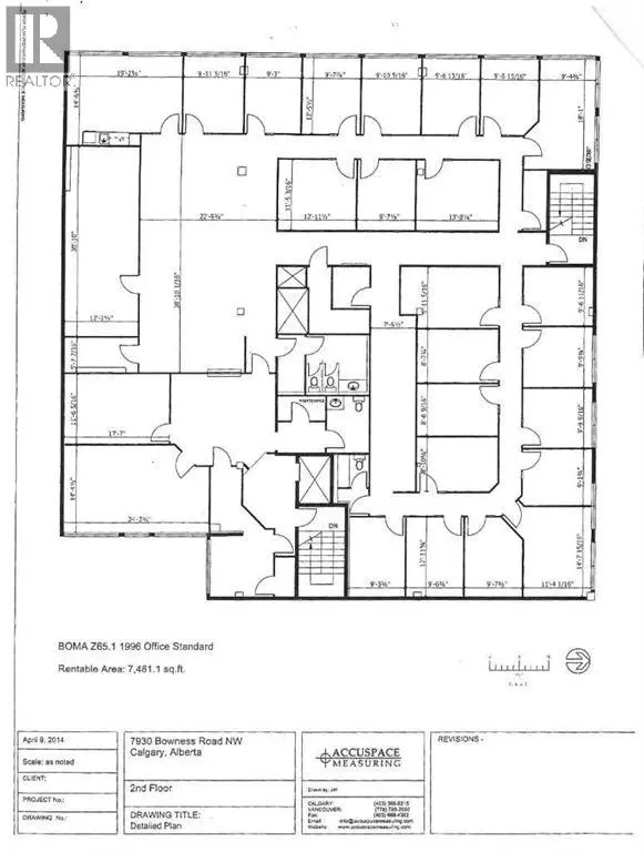
200, 68, 7930 Bowness Road NW Calgary, AB T3B0H3
7,481 SqFt
UPDATED:
Key Details
Property Type Commercial
Listing Status Active
Purchase Type For Rent
Square Footage 7,481 sqft
Subdivision Bowness
MLS® Listing ID A2167215
Year Built 1978
Source Calgary Real Estate Board
Property Description
Entire 2nd floor, 7,481 sq. ft. of secure well developed space with abundant natural light, formerly occupied by Child and Family services. 3rd floor suite of 2,394 sq. ft., can be subdivided. Elevator access, excellent parking, below market rates including utilities, and great Bowness Road location. 3 story retail /office building with elevator access. Landlord completing upgrades to common areas. Accessible location with public transit and close proximity to Hwy 1, Sarcee Trail, Stoney Trail, Crowchild Trail and Downtown. Ample front parking. (id:24570)
Location
Province AB
Rooms
Kitchen 0.0
Interior
Cooling Central air conditioning
Exterior
Parking Features No
View Y/N No
Private Pool No
Others
Acceptable Financing Yearly
Listing Terms Yearly






